Căn hộ 3PN MeyPearl Harmony Phú Quốc – Hướng nội khu thoáng mát, tiềm năng đầu tư và an cư lâu dài
Thông tin mô tả
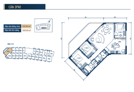
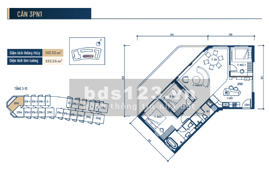
Thông tin căn hộ:
- Loại căn: 3 phòng ngủ rộng rãi
- Hướng: Nội khu yên tĩnh, thoáng mát
- Thiết kế tối ưu ánh sáng và gió tự nhiên
- Không gian sống riêng tư, phù hợp gia đình
Ưu điểm nổi bật:
- Nội khu xanh, cảnh quan đẹp, môi trường sống trong lành
- Gần biển, tận hưởng không gian nghỉ dưỡng mỗi ngày
- Thuộc khu đô thị quy hoạch đồng bộ tại Nam Phú Quốc
- Hạ tầng khu vực đang phát triển mạnh
⭐ Đặc biệt: Phú Quốc đang được định hướng trở thành trung tâm du lịch – kinh tế quốc tế và sắp tới sẽ là nơi tổ chức Hội nghị APEC, kéo theo sự đầu tư mạnh mẽ về hạ tầng, du lịch và dịch vụ. Điều này hứa hẹn tạo cú hích lớn cho giá trị bất động sản trong khu vực.
⚠️ Hiện tại chỉ còn những căn cuối cùng, phần lớn sản phẩm đã được khách hàng lựa chọn.
Đặc điểm bất động sản
- Loại hình nhà ở
- Căn hộ
- Giá/m²
- ~ 115,5 triệu/m²
- Diện tích
- 112.52 m²
- Giấy tờ pháp lý
- Hợp đồng mua bán
- Số phòng ngủ
- 3 phòng
- Số phòng vệ sinh
- 2 phòng
- Tình trạng nội thất
- Hoàn thiện cơ bản
- Tình trạng căn hộ
- Chưa bàn giao
- Hướng chính
- Chưa xác định
- Hướng ban công
- Chưa xác định
Vị trí & bản đồ
Đường ĐT 975, Phường Thị trấn An Thới, Phú Quốc, Kiên Giang Xem bản đồ lớn
Thông tin liên hệ
- Ngày đăng
- Thứ ba, 09:27 24/03/2026
- Gói tin
- Tin thường
- Mã tin
- 914328










