Cho thuê tòa nhà văn phòng 46 Chu Huy Mân, Long Biên (Tách tầng hoặc cả toà)
Thông tin mô tả
- Diện tích đất: 120m² (MT10m x sâu 12m)
- Tổng diện tích sử dụng: 1005m²
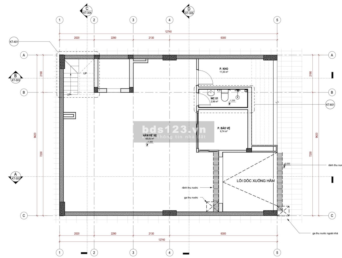
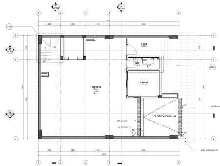
- Tầng hầm: Để được 02 ô tô và 40 xe máy
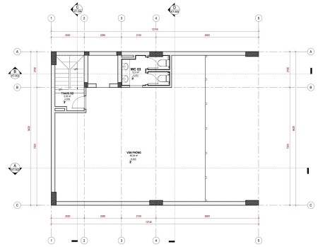
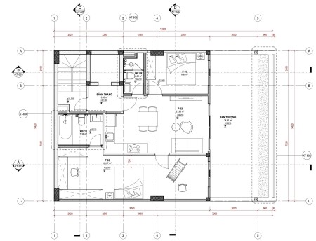
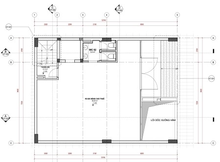
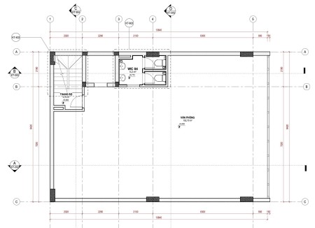
- Tầng 1, tầng 2: Mỗi tầng 90m2; phù hợp làm showroom, bán lẻ
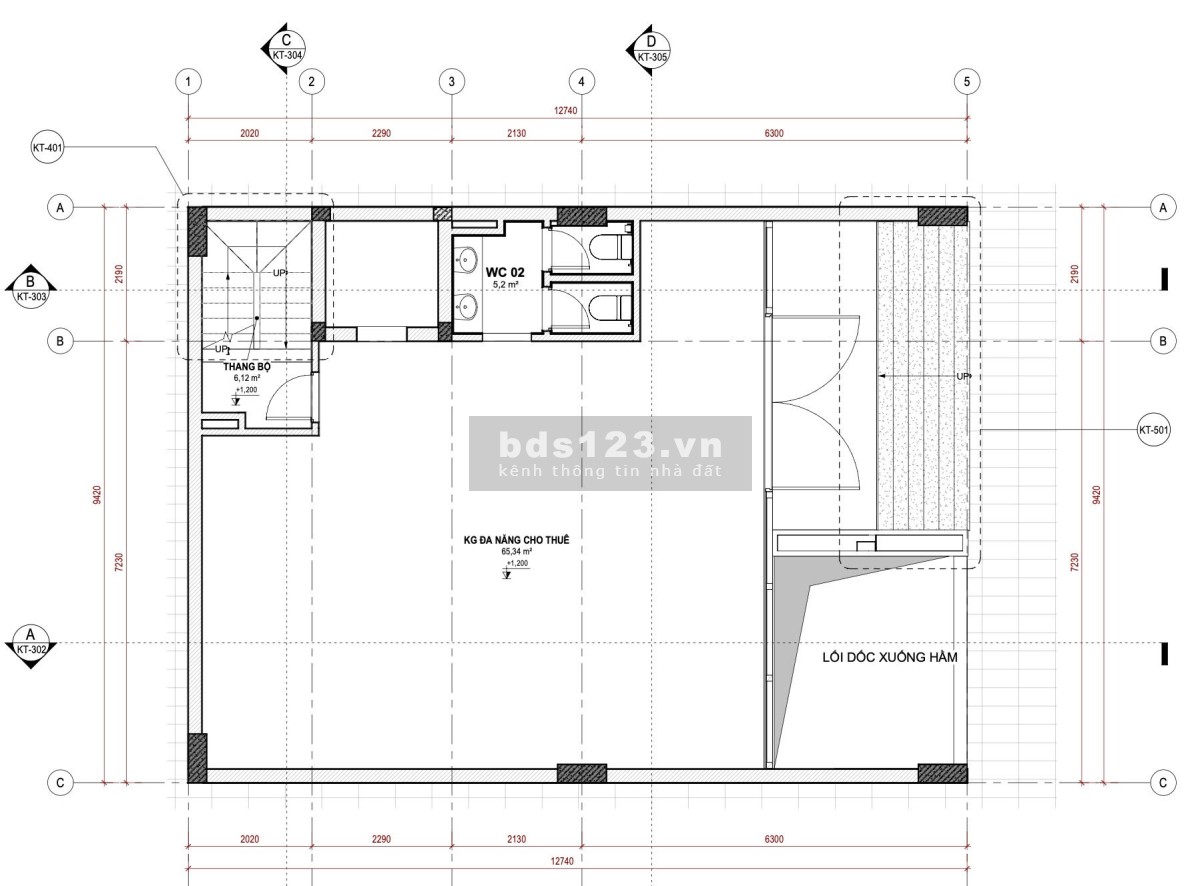
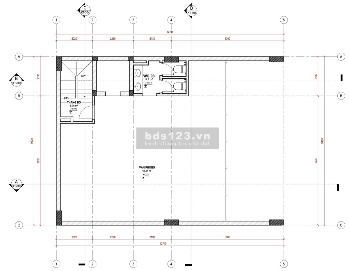
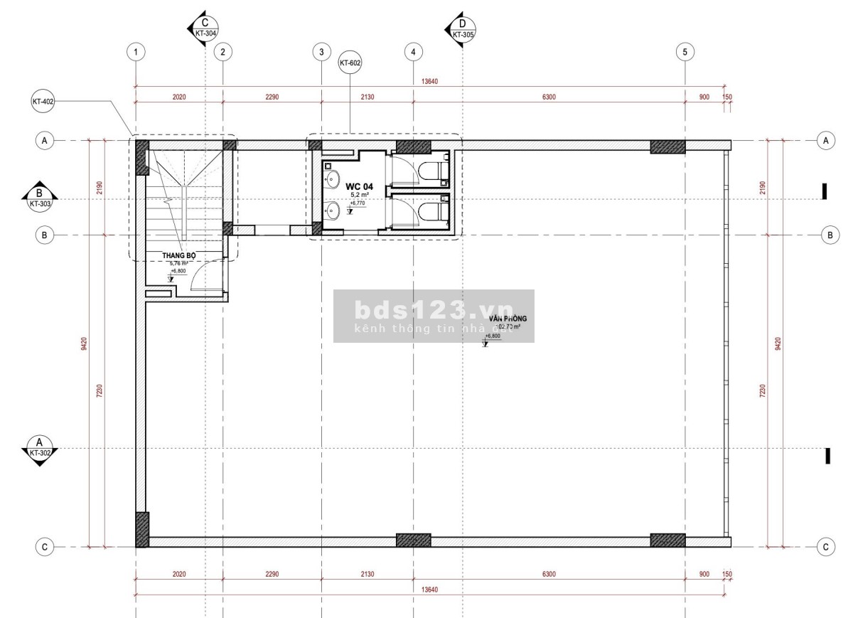
- Tầng 3-4-5-6: 130m2 (10x13), sàn văn phòng phẳng, nhiều ánh sáng, toilet khép kín, chia 2 ngăn nam/nữ
- Tầng 7 và tầng 8: 2 căn hộ khép kín 80-90m2, mỗi căn 02 phòng ngủ + 2 toilet + phòng khách + bếp
- Hoàn thiện đầy đủ trần sàn, điện, tường, điều hoà, PCCC
- Đi đóng về mở làm việc 24/24
- Có bảo vệ trông giữ bên dưới hầm
- Thang máy dùng thẻ quẹt khóa từng tầng độc lập.
Đặc điểm bất động sản
| Loại hình nhà ở | Văn phòng |
| Diện tích | 1.005 m² |
Vị trí & bản đồ
46 Phố Chu Huy Mân, Phường Phúc Lợi, Long Biên, Hà Nội Xem bản đồ lớn
Thông tin liên hệ
Tất cả tin rao vặt đều do người dùng đăng tải. Bds123.vn không chịu trách nhiệm về tính chính xác của thông tin. Chúng tôi khuyến khích bạn nên kiểm tra kỹ thông tin trước khi giao dịch. Nếu phát hiện nội dung sai phạm, vui lòng báo cáo tại đây hoặc qua hotline 0839202123 để được hỗ trợ nhanh chóng và kịp thời.










